PROYECTO VENDIDO
130.000.000Gs. o 19.900 U$S
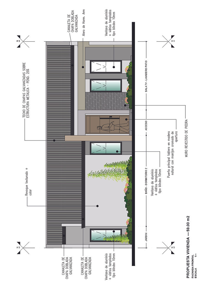
Nos complace anunciar el inicio de la construcción de una nueva vivienda de 59 m² diseñada para ofrecer comodidad y funcionalidad.
โจ Características de la casa:
โ 2 dormitorios ๐๏ธ
โ 1 baño
โ Sala, cocina y comedor integrados ๐ฝ๏ธ๐ก
โ Lavadero independiente ๐งบ
Un espacio pensado para brindar calidad de vida y bienestar. ¡Pronto estará lista para convertirse en un hogar!
๐ ¿Te gustaría conocer más detalles? Contáctanos y asegura tu lugar en este proyecto.
MIRA EL VIDEO:











LA CASA TERMINADA
CONTACTO
Preguntas
Para todo tipo de preguntas, comentarios e inquietudes; por favor llámanos: +595 983 222461 o completa el formulario a continuación
Oficina
Lomas Valentinas, 1745 - Encarnación - Paraguay
โ
Teléfono: +595 983 222461
TRABAJA CON NOSOTROS:
Si queres formar parte de nuestro equipo comunicate con nosotros.
Recibí un presupuesto:
+595 983 222461
